Оренда приміщення під склад, виробництво - 526м2 ;190м2

Адреса Кременчук, 1, 2, 3-занасип
поверх поверх 1/1 Площа 526

ID:14501

ХАРАКТЕРИСТИКА ОБ'ЄКТА

  • Земельна Ділянка:комерційного призначення
  • Об'єкти НК, В, Р:НК

Контактна інформація

ОПИС

Оренда приміщення під склад, виробництво із зручною локацією та великою потужністю електроенергії, неподалік траса на Полтаву.

Локація: м. Кременчук, р-н 1 Занасип.

Зручна транспортна доступність. Місце під службове авто. Заїзд вантажних авто.

Загороджена територія, цілодобова охорона.

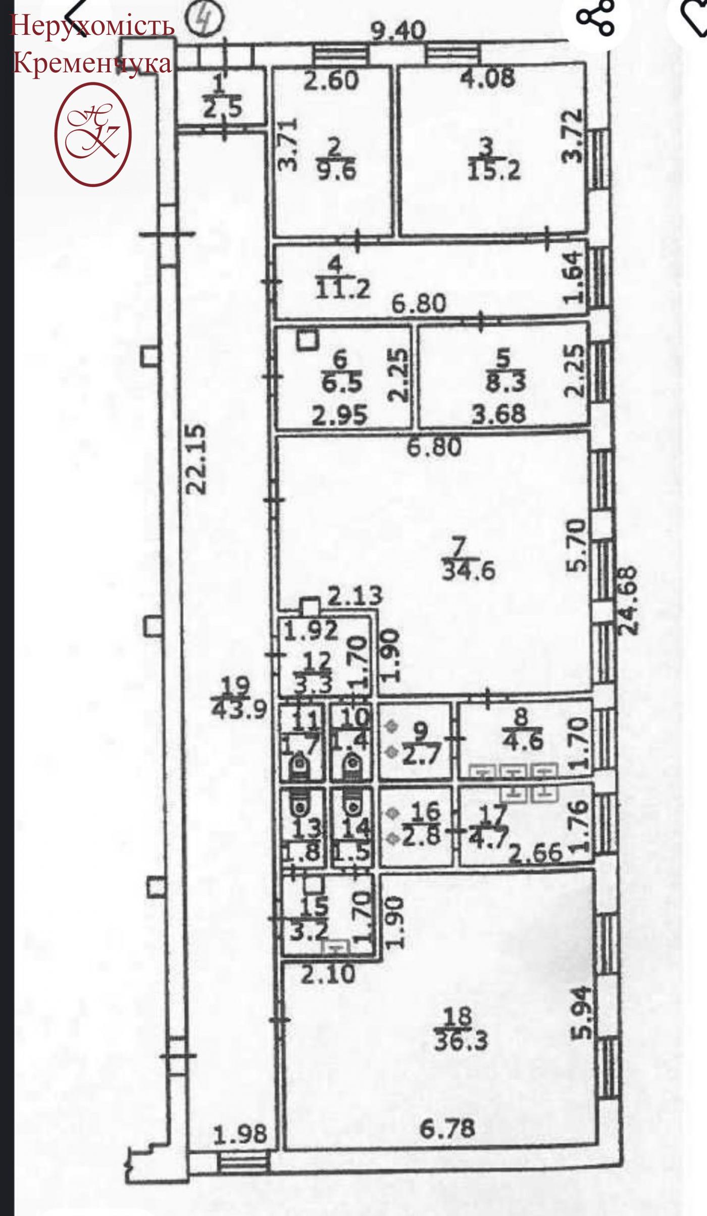
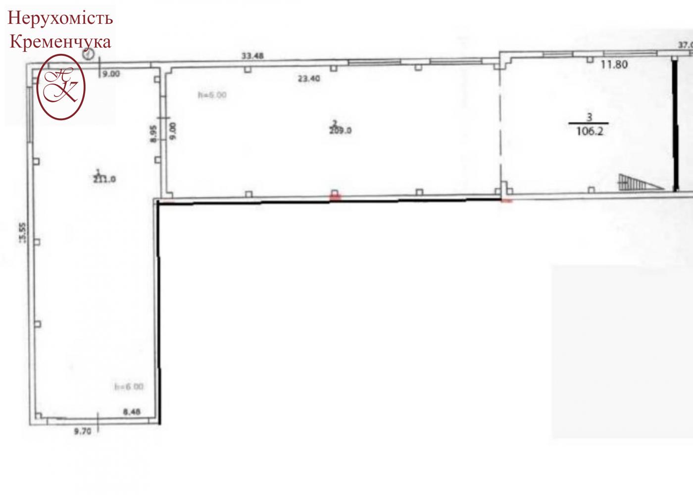
Площа:

- Загальна площа виробничо-складського приміщення - 526 кв.м. (висота стелі - 6 м).

- Приміщення під міні- виробництво, швейний цех, адміністративне приміщення -190кв.м.

План приміщення додається.

-Комунікації: вода, каналізація.

-Електроенергія 380w/150 квт.

-Адміністративне приміщення обладнане електроконвектором для опалення.

Вартість: 80 грн за 1 кв.м. (57200) грн разом з адміністративними приміщеннями) плюс комунальні послуги по лічильникам.

Оплата за перший і страховий місяць.

Додатково сплачується комісія агентства.

Перегляд — за попередньою домовленістю, в будні дні з 9.00-17.00.

ОБ'ЄКТ НА КАРТІ